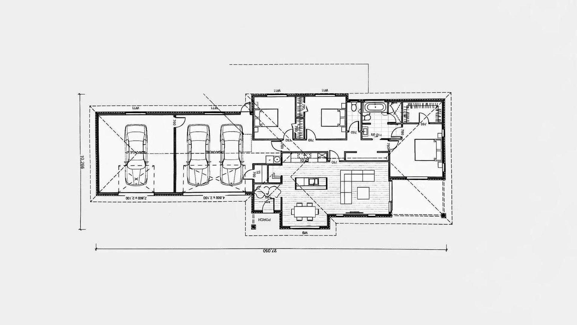
STOP. 2 x Double Internal Garages

This is not your standard 3 bedroom home. Most buyers are walking through the same thing on repeat… standard garage, tight parking, nowhere for the toys, nowhere for the extras. Then this shows up. Welcome to 19 Bragato Way, a property that changes the rules. 2 x double internal garages + double carport + full concrete hardstand. Not “good parking”, serious capacity. This is the kind of setup buyers wait years to find, and usually have to go rural to get. Here, you get it in a residential setting.

Built by a car enthusiast who knew exactly what most homes get wrong, not enough garage, not enough turning space, not enough secure parking. So they fixed it. And for the buyer who wants the full setup… the classic car shown in the photos may also be included as part of the sale (subject to negotiation). If you’ve got classics, bikes, a trailer, a boat, work vehicles, or plans to grow into all of it, this property doesn’t ask you to compromise. It’s already ready. The long private driveway sets you back from the street, giving you security, space, and the option to add an electric gate. And when the sun’s out, you’re on the motorway in minutes, not stuck trying to get there. With Hampton Downs Raceway under 10 minutes away, your weekends just got a serious upgrade. Whangamata Beach Hop! 1hr 30 minutes and you are there! The home holds its own. 3 bedrooms, 1.5 bathrooms, floor to ceiling tiled shower, freestanding bath, 2 toilets, gas cooking, walk in pantry, double glazed, fully insulated, pull down attic storage, and additional built in garage storage. Everything here is practical, clean, and done right. Comfort is sorted year-round with 3 heat pumps positioned exactly where you need them, master bedroom, second bedroom, and main living. Step straight out from the living area to covered outdoor entertaining with pull down privacy blinds, all-day sun, and a rural outlook. This is easy living without giving up space. Scroll the market and you’ll see it, homes with no parking, no flexibility, and no real functionality. This one works. Set in the sought after Waikare Estate, you’re close to town, local transport, and motorway access, while still enjoying space, privacy, and breathing room. This is not for everyone, and that’s exactly the point. This is for buyers who need real space, real storage, and a property that actually fits their lifestyle. There are plenty of 3 bedroom homes on the market. Very few are built like this. And once you see it, you’ll understand why. Location is easy in a 30 minute Triangle! 30 minutes to Hamilton, Auckland and Pukekohe Properties like this are rarely available in this price range. Enquire today to view — this one will not last.

Read More

Viewings

Viewings by appointment only

Asking Price

$995,000

Buyer Introduction Commission

20%

Specifications

Land Area
1351 m²
Floor Size
207 m²

Share this property

No Results Found

Get in touch

Property enquiries

"*" indicates required fields

This field is hidden when viewing the form

Still looking?

Properties for sale