buy now $670,000

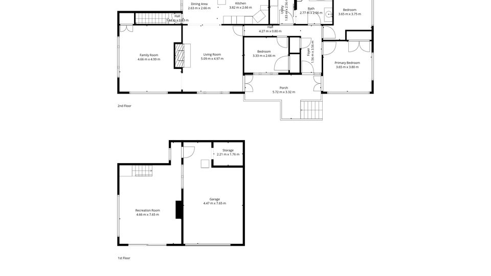
Set back from the road for added peace and privacy, this spacious two-level home offers flexibility, comfort, and real value on a generous 968sqm freehold section. With a 210sqm floor area, there is room here for families to spread out and enjoy. Upstairs, the kitchen and dining are combined with excellent storage, flowing into both a living room and separate family room. A heat pump, smart vent ventilation system, and gas infinity hot water provide year-round comfort. The bathroom is well-sized with a separate bath and shower, plus the convenience of a separate toilet. The interior remains comfortable as is, with clear opportunity to refresh over time.

Downstairs, a large recreation room opens directly outdoors, offering options as a games room, home office, or additional bedroom. The backyard is private and sheltered, ideal for children and pets, while the double garage and off-street parking complete the package. Buy Now $670,000 or Deadline Closing Wednesday 13 May at 4pm.

Read More

Viewings

Viewings by appointment only

Asking Price

Contact for price

Buyer Introduction Commission

Contact agent for referral fee.

Specifications

Land Area
968 m²
Floor Size
210 m²

Share this property

Get in touch

Property enquiries

"*" indicates required fields

This field is hidden when viewing the form

Still looking?

Properties for sale