Buy Now $570,000

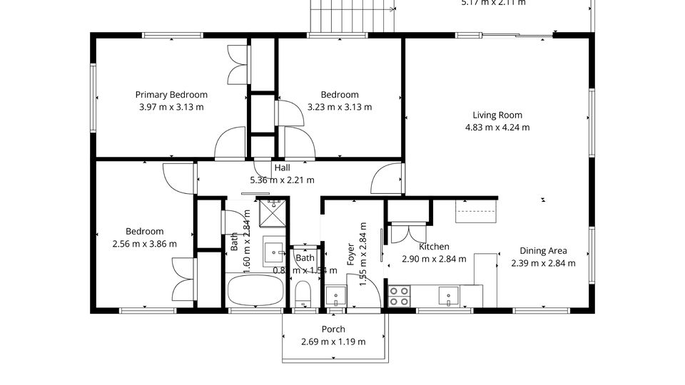
Buy Now $570,000 with motivated vendors keen to see all offers, this well presented Merrilands home combines sunny open plan living, easy flow to a generous deck, three comfortable bedrooms and a practical family-friendly layout with a fully fenced 667sqm section that offers excellent space for kids and pets, all complemented by a low maintenance exterior, established trees for shelter and privacy, and a double garage with extra room for storage or hobbies, all just moments from Merrilands shops, the domain, town, the Coastal Walkway and local beaches — get in touch today to arrange your viewing and see what this property has to offer.

Viewings

Sunday 31st May

01:30pm - 02:00pm

Asking Price

Buy Now $570,000

Buyer Introduction Commission

Contact agent for referral fee.

Specifications

Land Area
667 m²
Floor Size
95 m²

Share this property

Get in touch

Property enquiries

"*" indicates required fields

This field is hidden when viewing the form

Still looking?

Properties for sale