Secure Your New Build with Just 5% deposit

Smart, Sharp, and Built to Perform – This is Turn-Key Done Right We’re talking free-standing, freehold, and brand-new. Turn-key. Pay 5% deposit now, settle the rest when finished, move straight in. Buy now and make it your own – at this stage you have the ability to personalise key finishes throughout the home, including carpet colour, bathroom tile style, kitchen splashback tiles, kitchen cabinetry colour, hard flooring colour, tapwear style, and your choice of gas or electric cooking and hot water.

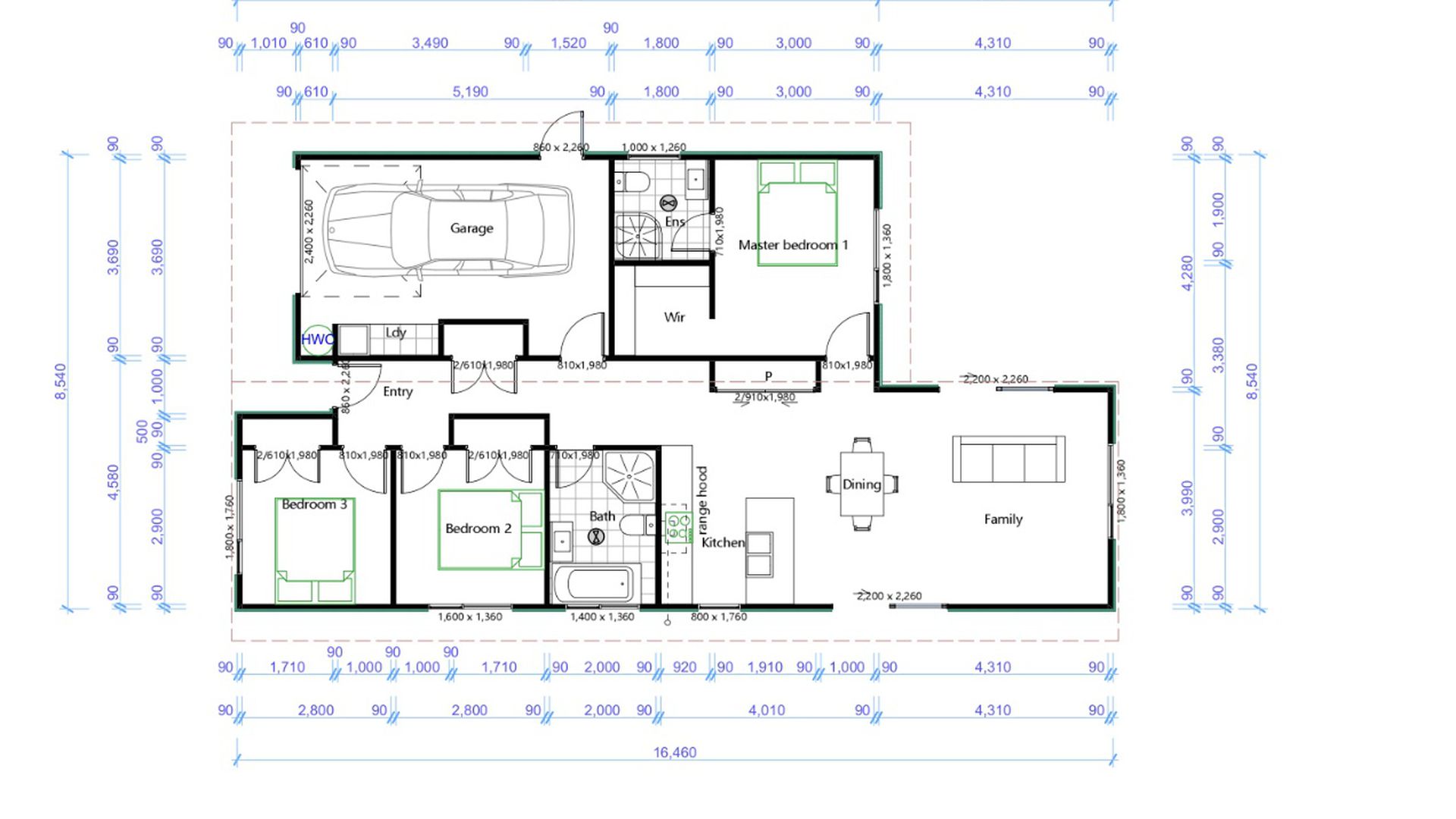
Designed for modern living without the wasted space, this well-executed 115m² floor plan delivers everything you need and nothing you don’t. Clean lines, functional flow, and a layout that just works. At the heart of the home, the open-plan kitchen, dining, and living area creates a natural hub for everyday living. Positioned to capture light and flow seamlessly outdoors, it connects straight to the outdoor living zone—perfect for summer evenings and easy entertaining. The kitchen anchors the home, giving you connection, space, and practicality all in one. Three well-positioned bedrooms offer flexibility for families, flatmates, or working from home. The master is privately set with its own ensuite and walk-in wardrobe, while the remaining bedrooms are serviced by a full bathroom. The internal access garage and fitted laundry keep everyday living streamlined and easy. Set on a low-maintenance section, this is a home designed for real life—easy care, functional, and built to last. Why This Home Hits Different: 2 double bedrooms PLUS a master bedroom suite with walk-in wardrobe and ensuite Luxury bathrooms with floor-to-ceiling tiled showers and freestanding bathtub Fully tiled showers with recessed shelving LED bathroom mirrors Touch screen alarm system Pull-down attic stairs for extra storage Bosch appliances – built-in quality that lasts Choice of gas or electric cooking and hot water Fitted wardrobes throughout Fully fitted laundry Letterbox and clothesline included Heat pump for year-round comfort Keyless digital front door entry Underfloor heating in both bathrooms 1-year maintenance period for peace of mind 10-year Master Build warranty Landscaped, grass-seeded lawns Kwila decking for outdoor living Stone benchtops with generous prep space Full colour consultation to personalise your home Low-maintenance design – ideal for busy lives or lock-and-leave Fixed price – $669,000 No surprise builder fees when buying direct from Booming Builders What you see is what you get – no stripped-back specs No agent fees when working with local agents Local aftercare from a team who live in the area Why Te Kauwhata? 35 minutes to Auckland, 35 minutes to Hamilton Small-town lifestyle with real growth Local shops, cafes, and schools A genuine community with strong future upside This is the next move, and you’re early. Build completion time - Move in September! First home buyers, this is your window. Book your appointment, secure your new home, and make it yours. Please note: Photos are of a similar build Virtually enhanced to show design additions

Read More

Viewings

Viewings by appointment only

Asking Price

$669,000

Buyer Introduction Commission

Contact agent for referral fee.

Specifications

Land Area
307 m²
Floor Size
115 m²

Share this property

No Results Found

Get in touch

Property enquiries

"*" indicates required fields

This field is hidden when viewing the form

Still looking?

Properties for sale